Magnifique villa 5 pièces avec piscine – Le Fey 32, 1510 Moudon
Description
Située dans un quartier résidentiel calme et proche de toutes commodités, cette villa individuelle d’environ 150 m2, avec piscine extérieure, a été entièrement rénovée et réaménagée en automne 2025. Objet idéal pour une famille avec enfants.
Située à 300 mètres de la nouvelle école primaire, à 500 mètre d’un arrêt de bus, elle est également proche de commerces et se situe à dix minutes à pieds du centre ville de Moudon. À 30 minutes de Lausanne ou Bulle, à 20 minutes de Payerne, vous profitez ici d’un véritable havre de paix, tout en restant proche des grands axes et des commodités.
Ce bien rare séduit autant par ses volumes généreux et ses finitions soignées, son grand jardin et sa piscine de belle dimension.
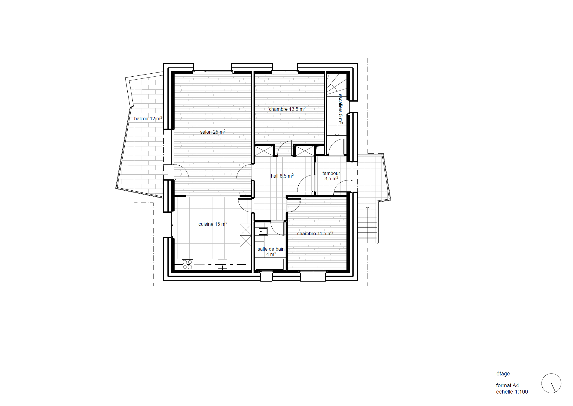
La villa est composée comme suit :
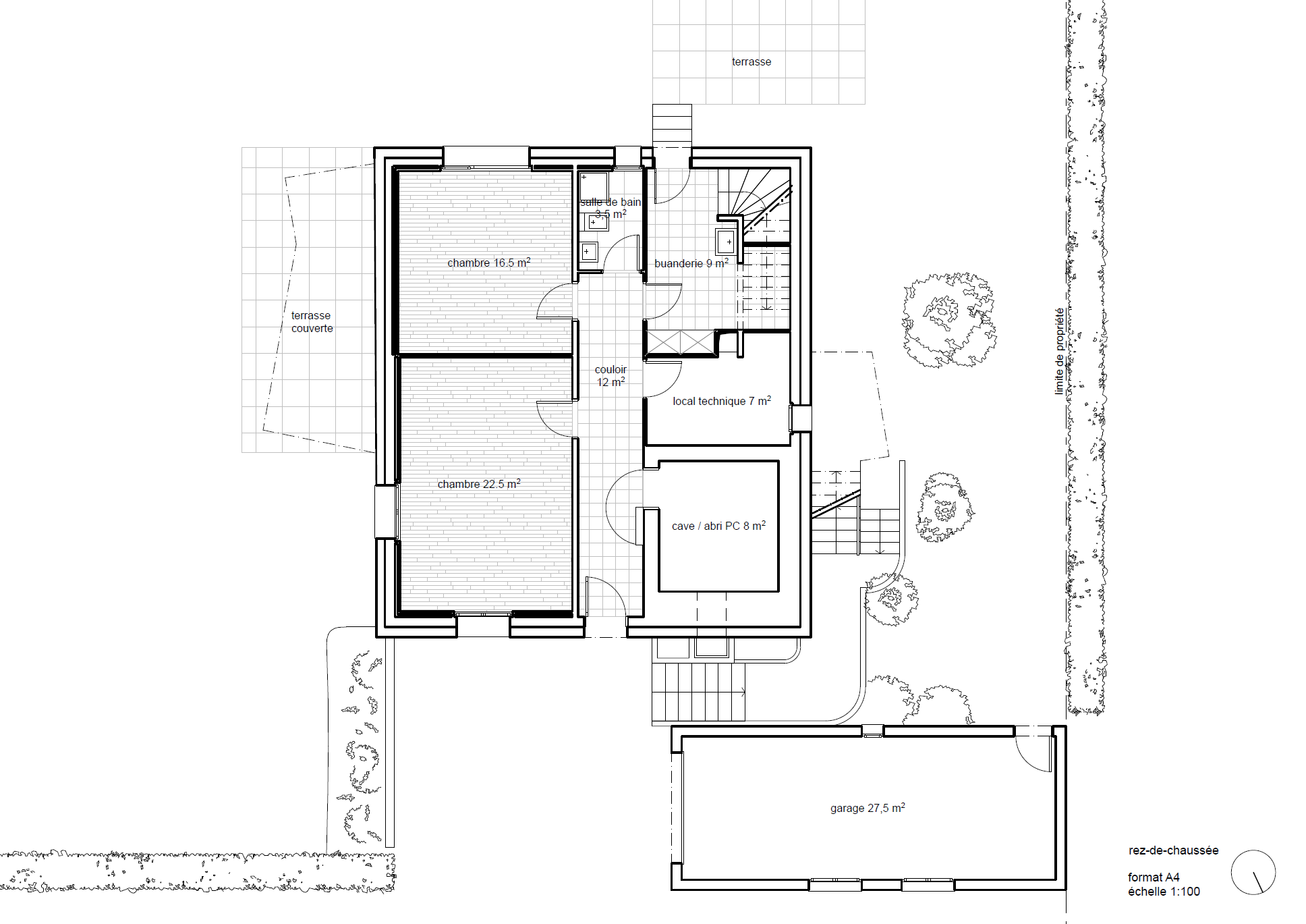
Rez-de-chaussée :
- Couloir d’entrée, carrelage au sol
- Chambre 1, parquet au sol
- Chambre 2, parquet au sol
- Salle de bains / douche
- Buanderie avec armoires murales, machine à laver et séchoir, carrelage au sol
- Sortie directe côté jardin et piscine
- Cave
- Local technique
- Escalier
Étage :
- Hall d’entrée, carrelage au sol
- Hall central avec armoires murales, carrelage au sol
- Chambre 3, parquet au sol
- Chambre 4, parquet au sol
- Salle de bains / baignoire
- Cuisine ouverte sur le salon, carrelage au sol
- Grand salon, parquet au sol
- Grand balcon, carrelage au sol
Extérieur :
- Une terrasse couverte et une terrasse face à la piscine
- Parcelle de 1000 m2 arborée, avec haie
- Grand garage indépendant pour une voiture
- Une place de stationnement extérieure
Loyer mensuel net : CHF 2’900.- (charges en sus) Garage 120.- et place de parc 80 Frs, soit un total de 3’100 Frs.
Disponible dès le 01.02.2026
La villa a été entièrement rénovée et bénéficie notamment d’une excellente isolation thermique périphérique. Les coûts de chauffage seront donc fortement réduits.
Les aménagements extérieurs (gazon, terrasses) seront terminés prochainement.
Le propriétaire prend en charge l’entretien de la piscine par un professionnel pendant la première année, dans le but de vous familiariser avec les bonnes pratiques d’entretien.
Les chiens ne sont pas admis dans le logement.
Contactez-nous dès aujourd’hui pour organiser une visite et découvrir cette magnifique propriété !
























